top of page
61_edited.png

 Modern Luxury

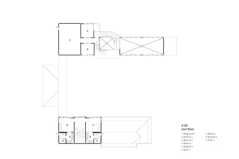
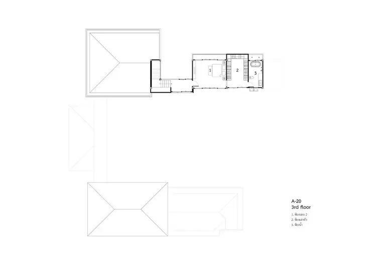
แบบบ้าน : A - 22

พื้นที่ก่อสร้าง  ตารางเมตร

4 ห้องนอน

5 ห้องน้ำ

1 โซนนั่งเล่น + โซนรับประทานอาหาร

4 ห้องแต่งตัว

1 ห้องครัว 

1 ห้องดูภาพยนต์

2 ห้องทำงาน

2 ที่จอดรถ

Social Media

123-456-7890

bottom of page