หน้าหลัก
ออกแบบ
ก่อสร้าง
บ้านโครงการ
บริการ
ติดต่อเรา
อื่นๆ
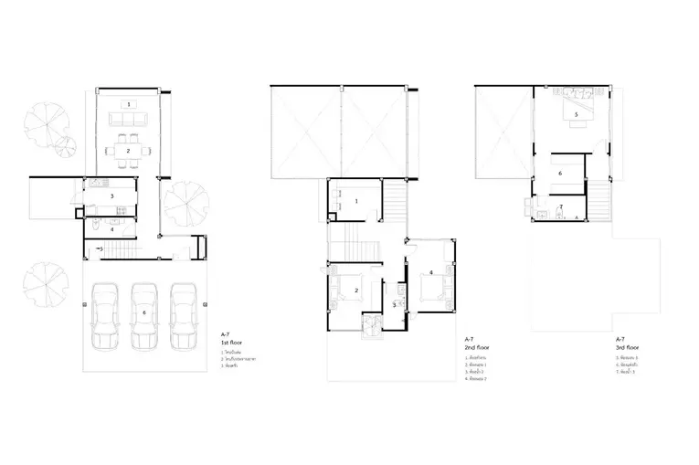
พื้นที่ก่อสร้าง 234 ตารางเมตร
3 ห้องนอน
3 ห้องน้ำ
1 โซนนั่งเล่น + โซนรับประทานอาหาร
1 ห้องครัว
3 ที่จอดรถ