top of page
72.webp

Modern Minimalist

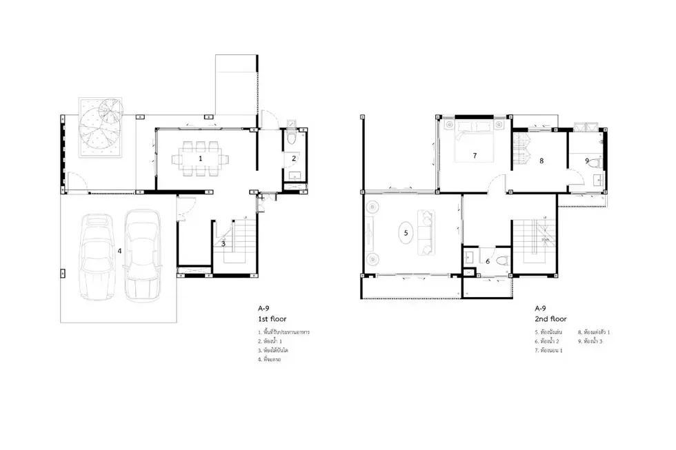
แบบบ้าน : A - 25

พื้นที่ก่อสร้าง 223 ตารางเมตร

3 ห้องนอน

4 ห้องน้ำ

1 ห้องนั่งเล่น

1 ห้องแต่งตัว

1 ห้องครัว 

2 ที่จอดรถ

1 ห้องรับประทานอาหาร

bottom of page