top of page

ข้อมูลโครงการ

ต.ท่าวังตาล อ.สารภี จ.เชียงใหม่

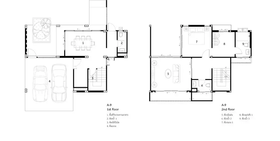
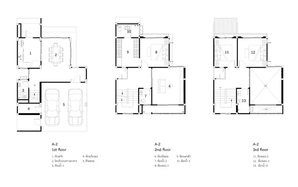
มีจำนวน 3 Types 

จำนวนแปลง 18 ยูนิต

พื้นที่โครงการ (ไร่) : 2 ไร่

71.webp

พื้นที่ใช้สอย : 200 - 250 ตรม.

ผังโครงการ 

Types 1

Types 2

Types 3

bottom of page