top of page
45-2_edited.jpg

Modern Minimalist

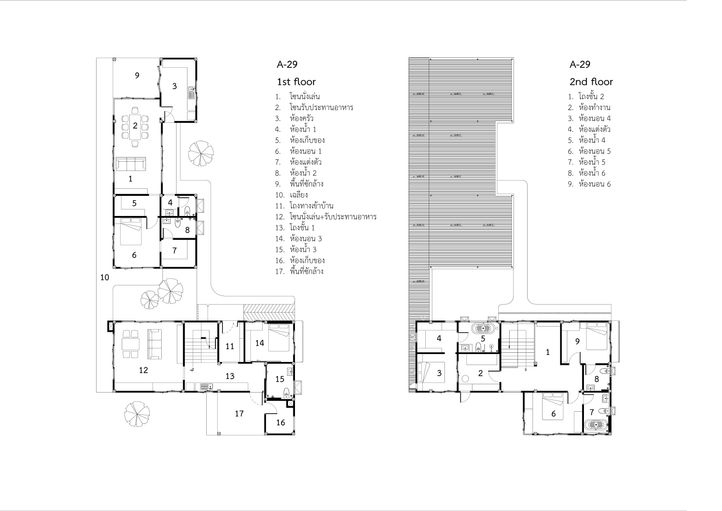
แบบบ้าน : A - 29

พื้นที่ก่อสร้าง  ตารางเมตร

4 ห้องนอน

5 ห้องน้ำ

1 โซนนั่งเล่น + โซนรับประทานอาหาร

1 ห้องแต่งตัว

1 ห้องครัว 

2 ที่จอดรถ

bottom of page