หน้าหลัก
ออกแบบ
ก่อสร้าง
บ้านโครงการ
บริการ
ติดต่อเรา
อื่นๆ
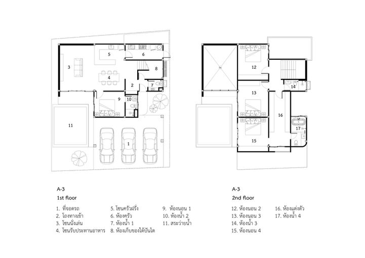
พื้นที่ก่อสร้าง 254 ตารางเมตร
4 ห้องนอน
4 ห้องน้ำ
1 โซนนั่งเล่น + โซนรับประทานอาหารนั่งเล่น + โซนครัวฝรั่ง
3 ที่จอดรถ
1 ห้องครัวไทย/โซนครัวฝรั่ง
1 สระว่ายน้ำ